テナント京都プロデユース
事業内容 物件検索 物件募集 家主様へ リフォーム事業 開店プロデュース お問い合わせ

    ■京都テナント・貸家物件検索■  <仲介>

[一覧へもどる]
物件No. 122213
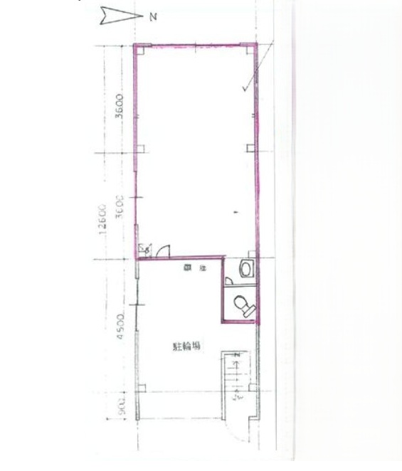
物件種別 事業 物件種目 店舗一部
賃料 16.5万円 共益費(円)
所在地 京都市下京区高倉通高辻下る葛籠屋町 交通 京都市烏丸線四条駅歩8分
保証金(万円) 50万円 解約引 返還率有
敷金(万円)   礼金(万円)  
土地面積(平米)   建物/専有面積(平米) 31.5
構造 鉄骨造 階建/階 4/1
間取り 駐車場
用途 店舗 築年月 1992年(平成 4年) 9月
現況 入居中 引渡 相談
最終確認日 2026年4月30日 次回確認日 2026年5月28日
その他1 5年定期借家契約 その他2 火災保険・保証会社加入要
コメント ★葛籠屋町1階
New四条駅徒歩8分!高倉通り面す1階♪鍼灸院等に適す。
※入居申し込み後、改装予定。
●駐輪場共用
●上階オーナー住居、現況、オーナー使用中

 

間取り図・詳細資料を請求する。




Copyright (c) Tenant-Kyoto All rights reserved.