テナント京都プロデユース
事業内容 物件検索 物件募集 家主様へ リフォーム事業 開店プロデュース お問い合わせ

    ■京都テナント・貸家物件検索■  <仲介>

[一覧へもどる]
物件No. 122207
物件種別 事業 物件種目 店舗戸建
賃料 16.5万円 共益費(円)
所在地 京都市中京区壬生下溝町 交通 山陰線丹波口駅歩11分
保証金(万円) 50万円 解約引 50%
敷金(万円)   礼金(万円)  
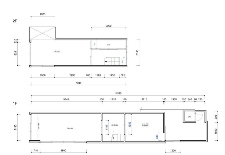
土地面積(平米)   建物/専有面積(平米) 55.09
構造 木造 階建/階 2/
間取り 駐車場
用途 店舗 築年月 1952年(昭和27年)10月
現況 空き 引渡 相談
最終確認日 2026年4月23日 次回確認日 2026年5月21日
その他1 3年契約 その他2 火災保険・保証会社加入要
コメント ★壬生下溝町貸店舗
New丹波口駅徒歩11分!壬生の一棟貸し。住居兼店舗、カフェ等。
●機械店として使われていた建物
●建築法令順守(消防・景観等)
●改装する場合の施工業者指定あり
● 二階南西側押入部(印)は塞ぐ事を前提に賃貸面積から除外するものとする。


間取り図・詳細資料を請求する。




Copyright (c) Tenant-Kyoto All rights reserved.