テナント京都プロデユース
事業内容 物件検索 物件募集 家主様へ リフォーム事業 開店プロデュース お問い合わせ

    ■京都テナント・貸家物件検索■  <仲介>

[一覧へもどる]
物件No. 122202
物件種別 事業 物件種目 店舗一部
賃料 11万円 共益費(円)
所在地 京都市左京区高野清水町 交通 叡山電鉄元田中駅歩5分
保証金(万円)   解約引
敷金(万円) 20万円 礼金(万円) 11万円
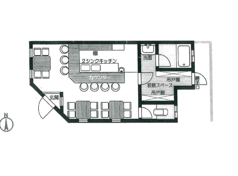
土地面積(平米)   建物/専有面積(平米) 31.6
構造 木造 階建/階 2/1
間取り 駐車場 近隣有
用途 店舗 築年月 1984年(昭和59年) 4月
現況 空き 引渡
最終確認日 2026年4月17日 次回確認日 2026年5月15日
その他1 2年契約/更新料旧賃料の1か月分 その他2 火災保険加入要
コメント ★高野清水町貸店舗
New元田中駅より徒歩6分!角地の1階飲食店居抜き店舗♪
●飲食店可
●駐車場:近隣あり(16,500円/月)

 

間取り図・詳細資料を請求する。




Copyright (c) Tenant-Kyoto All rights reserved.