テナント京都プロデユース
事業内容 物件検索 物件募集 家主様へ リフォーム事業 開店プロデュース お問い合わせ

    ■京都テナント・貸家物件検索■  <仲介>

[一覧へもどる]
物件No. 122177
物件種別 事業 物件種目 店舗戸建
賃料 132万円 共益費(円)
所在地 京都市中京区河原町通三条上る恵比須町 交通 京都市東西線京都市役所前駅歩3分
保証金(万円)   解約引 返還率有
敷金(万円) 480万円 礼金(万円) 132万円
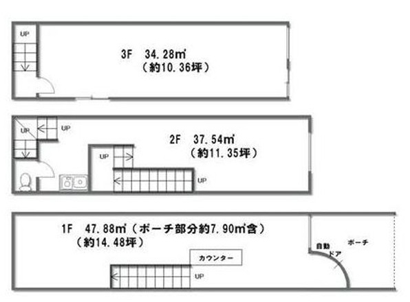
土地面積(平米)   建物/専有面積(平米) 119.78
構造 木造 階建/階 3/
間取り 駐車場
用途 店舗 築年月 令和 8年11月 上旬
現況 入居中 引渡
最終確認日 2026年3月27日 次回確認日 2026年4月24日
その他1 10年定期借家契約/再契約料賃料1カ月分 その他2 火災保険・保証会社加入要
コメント ★恵美須町一棟貸し
New京都市役所前駅徒歩3分!河原町通り面す♪インバウンド向き。
※現状貸し
●業種相談可
●設備は全て残置物扱い(借主管理・借主修理)
●ダムウエーター有り(残置物)


間取り図・詳細資料を請求する。




Copyright (c) Tenant-Kyoto All rights reserved.