テナント京都プロデユース
事業内容 物件検索 物件募集 家主様へ リフォーム事業 開店プロデュース お問い合わせ

    ■京都テナント・貸家物件検索■  <仲介>

[一覧へもどる]
物件No. 122174
物件種別 事業 物件種目 店舗戸建
賃料 20万円 共益費(円)
所在地 京都市北区紫野西藤ノ森町 交通 京都市烏丸線鞍馬口駅歩17分
保証金(万円)   解約引
敷金(万円) 20万円 礼金(万円) 20万円
土地面積(平米)   建物/専有面積(平米) 86.35
構造 鉄骨造 階建/階 3/
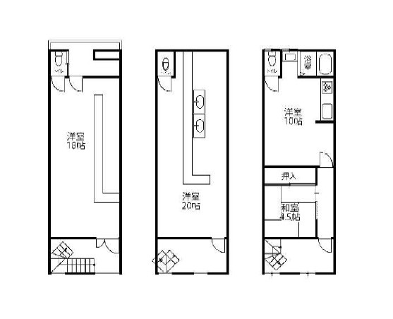
間取り 駐車場
用途 築年月 1986年(昭和61年) 5月
現況 空き 引渡 相談
最終確認日 2026年3月25日 次回確認日 2026年4月22日
その他1 3年契約 その他2 火災保険・保証会社加入要
コメント ★紫野店舗付住宅
New鞍馬口通り面す!1階2階店舗3階住戸♪業種相談可。
●現状有姿
●駐輪場、湯沸器、事務所可、トイレ 専用、店舗付住宅、IT重説対応物件、飲食店 可、居抜き、事務所相談

 

間取り図・詳細資料を請求する。




Copyright (c) Tenant-Kyoto All rights reserved.