テナント京都プロデユース
事業内容 物件検索 物件募集 家主様へ リフォーム事業 開店プロデュース お問い合わせ

    ■京都テナント・貸家物件検索■  <仲介>

[一覧へもどる]
物件No. 122172
物件種別 事業 物件種目 店舗戸建
賃料 22万円 共益費(円)
所在地 京都市北区紫野郷ノ上町 交通 京都市烏丸線北大路駅歩31分
保証金(万円)   解約引
敷金(万円) 20万円 礼金(万円) 22万円
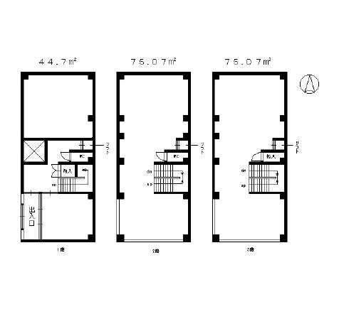
土地面積(平米)   建物/専有面積(平米) 198.84
構造 鉄骨造 階建/階 3/
間取り 駐車場
用途 店舗・事務所 築年月 1980年(昭和55年) 3月
現況 空き 引渡 相談
最終確認日 2026年4月27日 次回確認日 2026年5月25日
その他1 3年契約 その他2 火災保険・保証会社加入要
コメント ★紫野郷ノ上町一棟貸
New一棟貸しの事務所!近隣に駐車場有り。物販他相談可。

 

間取り図・詳細資料を請求する。




Copyright (c) Tenant-Kyoto All rights reserved.