テナント京都プロデユース
事業内容 物件検索 物件募集 家主様へ リフォーム事業 開店プロデュース お問い合わせ

    ■京都テナント・貸家物件検索■  <仲介>

[一覧へもどる]
物件No. 122171
物件種別 事業 物件種目 店舗戸建
賃料 35.2万円 共益費(円)
所在地 京都市上京区大猪熊町 交通 京阪鴨東線出町柳駅歩7分
保証金(万円)   解約引
敷金(万円) 96万円 礼金(万円) 35.2万円
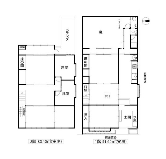
土地面積(平米)   建物/専有面積(平米) 175.05
構造 木造 階建/階 /
間取り 駐車場
用途 店舗 築年月 不詳
現況 空き 引渡 相談
最終確認日 2026年4月27日 次回確認日 2026年5月25日
その他1 10年定期借家契約 その他2 火災保険・保証会社加入要
コメント ★大猪熊町京町家
New河原町今出川交差点近く!物販・アトリエ・小規模カフェ等♪
●大型京町家テナント
●地域に寄り添う店舗づくりや、目的来店型のビジネスにおすすめ。
●落ち着いた住環境に位置しながら、角地ならではの視認性も確保。

 

間取り図・詳細資料を請求する。




Copyright (c) Tenant-Kyoto All rights reserved.