テナント京都プロデユース
事業内容 物件検索 物件募集 家主様へ リフォーム事業 開店プロデュース お問い合わせ

    ■京都テナント・貸家物件検索■  <仲介>

[一覧へもどる]
物件No. 122170
物件種別 事業 物件種目 店舗戸建
賃料 14.3万円 共益費(円)
所在地 京都市北区紫野西御所田町 交通 京都市烏丸線北大路駅歩9分
保証金(万円)   解約引
敷金(万円) 26万円 礼金(万円)  
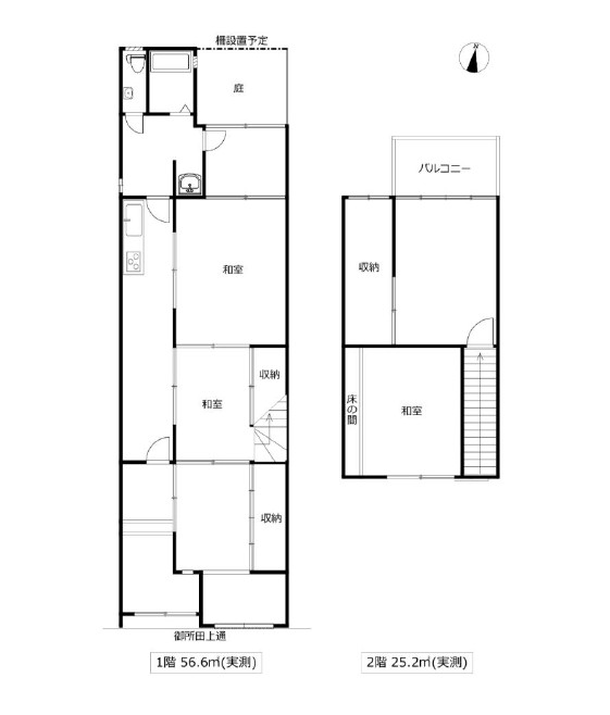
土地面積(平米)   建物/専有面積(平米) 81.8
構造 木造 階建/階 2/
間取り 駐車場
用途 店舗 築年月 不詳
現況 空き 引渡
最終確認日 2026年4月27日 次回確認日 2026年5月25日
その他1 3年契約/更新料新賃料の1か月分 その他2 火災保険・保証会社加入要
コメント ★紫野西御所田町戸建
New北大路駅徒歩9分!一部改修済み。物販、事務所等にオススメ♪
※第一種低層エリアにつき用途制限有。
●走り庭は改修され現在はキッチンに。町家らしい構成は一部かわっていますが水回りは比較的新しくなっております。

 

間取り図・詳細資料を請求する。




Copyright (c) Tenant-Kyoto All rights reserved.