テナント京都プロデユース
事業内容 物件検索 物件募集 家主様へ リフォーム事業 開店プロデュース お問い合わせ

    ■京都テナント・貸家物件検索■  <仲介>

[一覧へもどる]
物件No. 122163
物件種別 事業 物件種目 店舗一部
賃料 82.5万円 共益費(円) 22,000
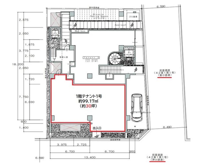
所在地 京都市中京区橘町 交通 京都市東西線京都市役所前駅歩5分
保証金(万円)   解約引
敷金(万円) 165万円 礼金(万円) 247.5万円
土地面積(平米)   建物/専有面積(平米) 99.17
構造 RC 階建/階 5/1
間取り 駐車場
用途 店舗 築年月 2026年(令和 8年) 3月
現況 空き 引渡 相談
最終確認日 2026年4月27日 次回確認日 2026年5月25日
その他1 3年契約/更新料新賃料1か月分 その他2 火災保険・保証会社加入要
コメント ★橘町新築1階1号
New押小路通り面す!2026年3月完成の新築♪間口3.4mガラス張。飲食店可!
●烏丸御池駅徒歩7分
●ゴミ回収業者は指定会社
●防火管理者の選任が必要
●駐車場備考:敷地内平面駐車場1台のみ 44,000円/月


間取り図・詳細資料を請求する。




Copyright (c) Tenant-Kyoto All rights reserved.