テナント京都プロデユース
事業内容 物件検索 物件募集 家主様へ リフォーム事業 開店プロデュース お問い合わせ

    ■京都テナント・貸家物件検索■  <仲介>

[一覧へもどる]
物件No. 122146
物件種別 事業 物件種目 店舗戸建
賃料 5.5万円 共益費(円)
所在地 京都市上京区姥ケ西町 交通 京都市烏丸線今出川駅歩23分
保証金(万円)   解約引
敷金(万円) 15万円 礼金(万円)  
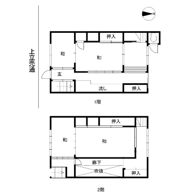
土地面積(平米)   建物/専有面積(平米) 66
構造 木造 階建/階 2/
間取り 駐車場
用途 店舗 築年月 不詳
現況 空き 引渡
最終確認日 2026年2月25日 次回確認日 2026年3月25日
その他1 10年定期借家契約 その他2 火災保険・保証会社加入要
コメント ★姥ケ西町京町家
New上立売通り面す!排水管工事・屋根瓦補修施工済み。
●入口土間は家主様と共有
●躯体の補修は借主にて行う(床の沈み有り)
●用途変更により固定資産税が増加した場合、賃料に転嫁
※適格請求書発行事業者の登録の有無は要確認

 

間取り図・詳細資料を請求する。




Copyright (c) Tenant-Kyoto All rights reserved.