テナント京都プロデユース
事業内容 物件検索 物件募集 家主様へ リフォーム事業 開店プロデュース お問い合わせ

    ■京都テナント・貸家物件検索■  <仲介>

[一覧へもどる]
物件No. 122144
物件種別 事業 物件種目 店舗一部
賃料 14.85万円 共益費(円)
所在地 京都市北区平野八丁柳町 交通 京福電鉄北野線北野白梅町駅歩5分
保証金(万円) 67.5万円 解約引 返還率有
敷金(万円)   礼金(万円)  
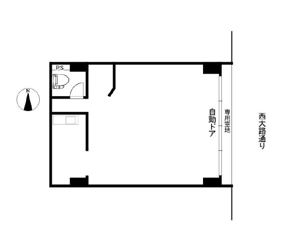
土地面積(平米)   建物/専有面積(平米) 39.69
構造 RC 階建/階 4/1
間取り 駐車場
用途 店舗 築年月 1985年(昭和60年) 2月
現況 空き 引渡
最終確認日 2026年2月24日 次回確認日 2026年3月24日
その他1 15年定期借家契約 その他2 火災保険・保証会社加入要
コメント ★ニュウコウポ岩谷
New北野白梅町駅徒歩5分!西大路通り面す1階♪事務所跡。
※飲食店不可

 

間取り図・詳細資料を請求する。




Copyright (c) Tenant-Kyoto All rights reserved.