テナント京都プロデユース
事業内容 物件検索 物件募集 家主様へ リフォーム事業 開店プロデュース お問い合わせ

    ■京都テナント・貸家物件検索■  <仲介>

[一覧へもどる]
物件No. 122137
物件種別 事業 物件種目 店舗一部
賃料 11万円 共益費(円)
所在地 京都市左京区吉田下阿達町 交通 京阪鴨東線神宮丸太町駅歩7分
保証金(万円)   解約引
敷金(万円)   礼金(万円) 22万円
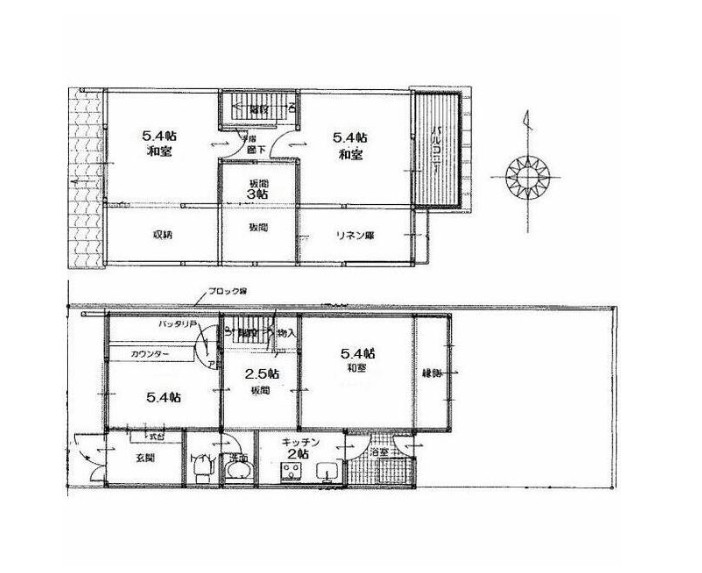
土地面積(平米)   建物/専有面積(平米) 80
構造 木造 階建/階 2/1-2
間取り 駐車場
用途 店舗 築年月
現況 入居中 引渡 令和 8年 4月 中旬
最終確認日 2026年2月17日 次回確認日 2026年3月17日
その他1 3年契約/更新料新賃料の1か月分 その他2 火災保険・保証会社加入要
コメント ★吉田下阿達町貸店舗
New神宮丸太町駅徒歩7分!飲食店可♪何商可!現状貸し。
●設備は全て残置物。築年数不詳。
●退去告知3ヶ月、1年未満解約違約金1ヶ月分。


間取り図・詳細資料を請求する。




Copyright (c) Tenant-Kyoto All rights reserved.