テナント京都プロデユース
事業内容 物件検索 物件募集 家主様へ リフォーム事業 開店プロデュース お問い合わせ

    ■京都テナント・貸家物件検索■  <仲介>

[一覧へもどる]
物件No. 122132
物件種別 事業 物件種目 店舗一部
賃料 38万円 共益費(円)
所在地 京都市中京区御池通小川東入石橋町 交通 京都市東西線烏丸御池駅歩7分
保証金(万円)   解約引
敷金(万円) 38万円 礼金(万円) 76万円
土地面積(平米)   建物/専有面積(平米) 69.19
構造 鉄骨造 階建/階 4/
間取り 駐車場
用途 店舗 築年月 昭和53年12月
現況 入居中 引渡 2026年5月
最終確認日 2026年2月9日 次回確認日 2026年3月9日
その他1 5年定期借家契約 その他2 火災保険・保証会社加入要
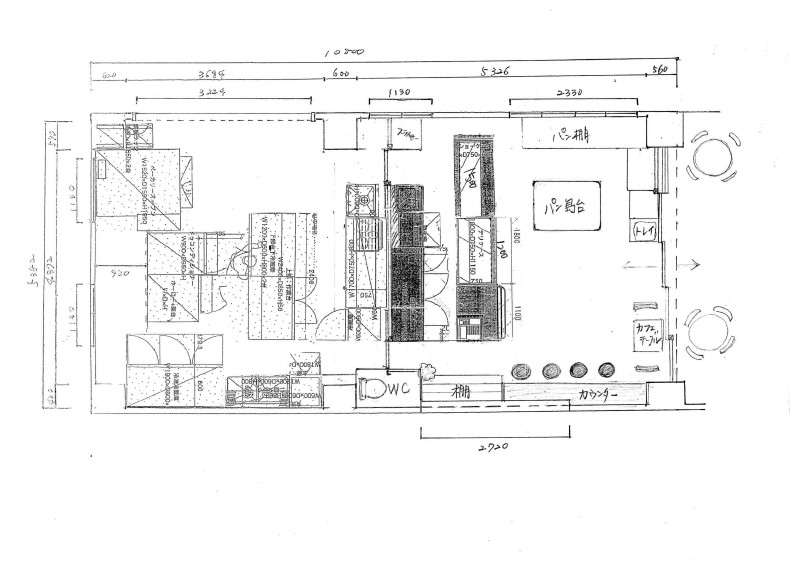
コメント ★泉商店ビル1階
New御池通り面す角地の1階!ベーカリー・ケーキ店向き♪
●飲食店不可(カフェ相談可)
●現状ベーカリー
●電気、ガスは直接契約。水道は定額5,000円/月(但し、水道使用量の多い業種の場合要相談)
●入居者審査有
●複数沿線利用可(烏丸御池駅 二条城前駅)

 

間取り図・詳細資料を請求する。




Copyright (c) Tenant-Kyoto All rights reserved.