テナント京都プロデユース
事業内容 物件検索 物件募集 家主様へ リフォーム事業 開店プロデュース お問い合わせ

    ■京都テナント・貸家物件検索■  <仲介>

[一覧へもどる]
物件No. 122119
物件種別 事業 物件種目 店舗戸建
賃料 22万円 共益費(円)
所在地 京都市左京区北白川大堂町 交通 叡山電鉄茶山・京都芸術大学駅歩14分
保証金(万円)   解約引 返還率有
敷金(万円) 50万円 礼金(万円)  
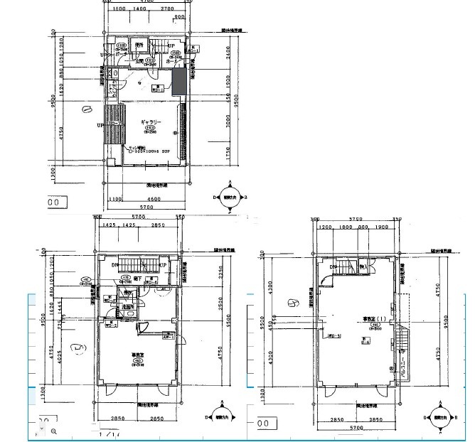
土地面積(平米)   建物/専有面積(平米) 154.11
構造 ALC 階建/階 3/
間取り 駐車場
用途 店舗 築年月 1985年3月
現況 空き 引渡 相談
最終確認日 2026年3月26日 次回確認日 2026年4月23日
その他1 3年契約/更新料賃料の1か月分 その他2 火災保険・保証会社加入要
コメント ★北白川大堂町貸店舗
New白川通り面す一棟貸し!広々事務所居抜き。業種相談可♪


間取り図・詳細資料を請求する。




Copyright (c) Tenant-Kyoto All rights reserved.