テナント京都プロデユース
事業内容 物件検索 物件募集 家主様へ リフォーム事業 開店プロデュース お問い合わせ

    ■京都テナント・貸家物件検索■  <仲介>

[一覧へもどる]
物件No. 122117
物件種別 事業 物件種目 店舗一部
賃料 22万円 共益費(円)
所在地 京都市山科区東野八反畑町 交通 京都市東西線東野駅歩6分
保証金(万円) 60万円 解約引 返還率有
敷金(万円)   礼金(万円)  
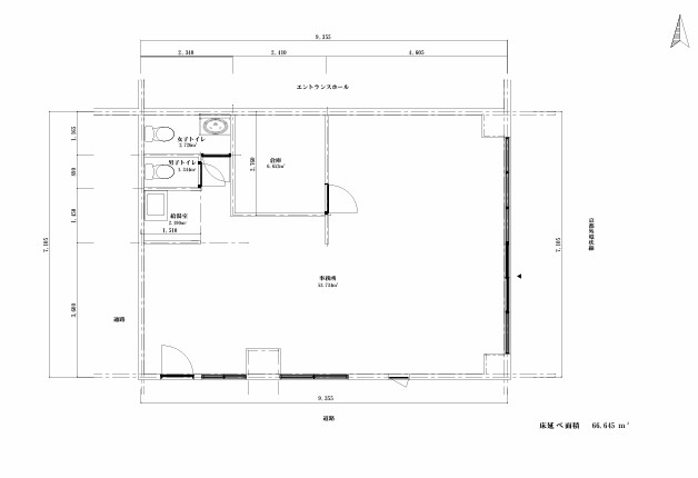
土地面積(平米)   建物/専有面積(平米) 66.64
構造 RC 階建/階 8/1
間取り 駐車場
用途 築年月 1981年(昭和56年)11月
現況 空き 引渡 相談
最終確認日 2026年3月26日 次回確認日 2026年4月23日
その他1 2年契約 その他2 火災保険・保証会社加入要
コメント ★パルテ山科1階
New東野駅徒歩6分!外環状線面す分譲マンションの1階貸店舗♪業種相談。


間取り図・詳細資料を請求する。




Copyright (c) Tenant-Kyoto All rights reserved.