テナント京都プロデユース
事業内容 物件検索 物件募集 家主様へ リフォーム事業 開店プロデュース お問い合わせ

    ■京都テナント・貸家物件検索■  <仲介>

[一覧へもどる]
物件No. 122116
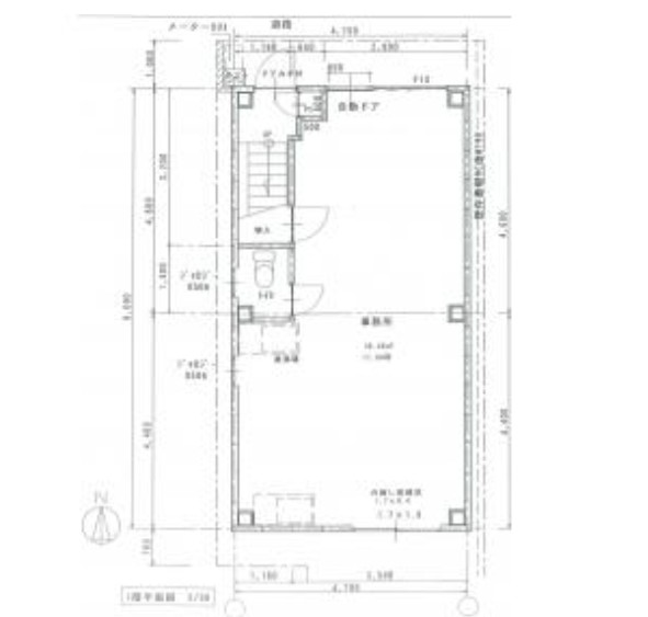
物件種別 事業 物件種目 店舗一部
賃料 17.5万円 共益費(円)
所在地 京都市左京区田中下柳町 交通 叡山電鉄出町柳駅歩1分
保証金(万円) 105万円 解約引
敷金(万円)   礼金(万円)  
土地面積(平米)   建物/専有面積(平米) 35.8
構造 階建/階 3/1
間取り 駐車場
用途 店舗 築年月 2010年(平成22年) 3月
現況 空き 引渡
最終確認日 2026年3月26日 次回確認日 2026年4月23日
その他1 3年定期借家契約 その他2 火災保険加入要
コメント ★出町柳ビル1階
New叡山電鉄出町柳駅前の好立地!飲食店可♪業種相談。

 

間取り図・詳細資料を請求する。




Copyright (c) Tenant-Kyoto All rights reserved.