テナント京都プロデユース
事業内容 物件検索 物件募集 家主様へ リフォーム事業 開店プロデュース お問い合わせ

    ■京都テナント・貸家物件検索■  <仲介>

[一覧へもどる]
物件No. 122108
物件種別 事業 物件種目 店舗一部
賃料 11万円 共益費(円)
所在地 京都市北区大宮薬師山東町 交通 京都市烏丸線北大路駅歩33分
保証金(万円) 50万円 解約引 返還率有
敷金(万円)   礼金(万円)  
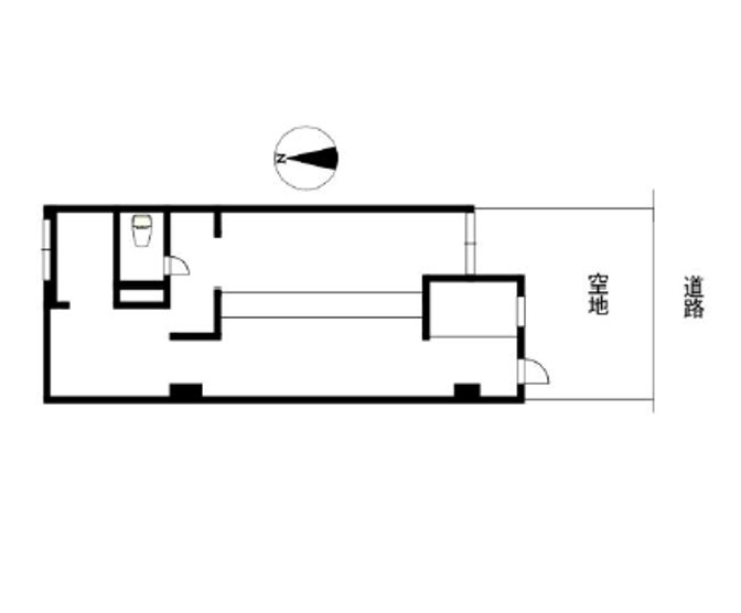
土地面積(平米)   建物/専有面積(平米) 36.97
構造 RC 階建/階 7/1
間取り 駐車場
用途 店舗 築年月 1973年(昭和48年) 8月
現況 空き 引渡
最終確認日 2026年3月26日 次回確認日 2026年4月23日
その他1 5年定期借家契約/再契約料賃料の1カ月 その他2 火災保険・保証会社加入要
コメント ★コーポラス西賀茂
New角地のマンション1階!南向き日当たり良好。飲食店要相談♪
●現状有姿にて引き渡し


間取り図・詳細資料を請求する。




Copyright (c) Tenant-Kyoto All rights reserved.