テナント京都プロデユース
事業内容 物件検索 物件募集 家主様へ リフォーム事業 開店プロデュース お問い合わせ

    ■京都テナント・貸家物件検索■  <仲介>

[一覧へもどる]
物件No. 122102
物件種別 事業 物件種目 店舗戸建
賃料 14.3万円 共益費(円) 11000
所在地 京都市伏見区深草谷口町 交通 JR奈良線JR藤森駅歩17分
保証金(万円) 40万円 解約引 返還率有
敷金(万円)   礼金(万円)  
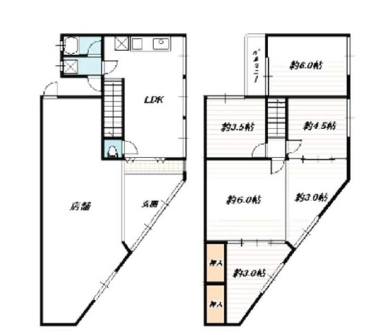
土地面積(平米)   建物/専有面積(平米) 91.02
構造 木造 階建/階 2/
間取り 駐車場
用途 築年月 1979年(昭和54年) 2月
現況 入居中 引渡 令和 8年 2月 上旬
最終確認日 2026年1月16日 次回確認日 2026年2月13日
その他1 3年契約/更新料新賃料の1か月分 その他2 火災保険・保証会社加入要
コメント ★深草谷口町貸店舗
New店舗・事務所・住居利用可。業種利用可♪内装自由。
●室内全て残置物扱い
●浴室使用不可(借主にて改修となります)
※玄関、シャッター不具合あり

 

間取り図・詳細資料を請求する。




Copyright (c) Tenant-Kyoto All rights reserved.