テナント京都プロデユース
事業内容 物件検索 物件募集 家主様へ リフォーム事業 開店プロデュース お問い合わせ

    ■京都テナント・貸家物件検索■  <仲介>

[一覧へもどる]
物件No. 122097
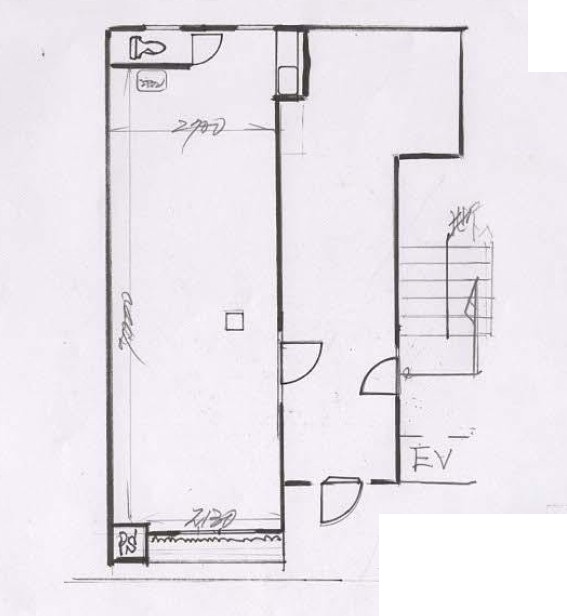
物件種別 事業 物件種目 店舗一部
賃料 14.3万円 共益費(円) 5,500
所在地 京都市東山区五条橋東4丁目 交通 京阪本線清水五条駅歩5分
保証金(万円) 39万円 解約引 20%
敷金(万円)   礼金(万円)  
土地面積(平米)   建物/専有面積(平米) 28
構造 鉄骨造 階建/階 6/1
間取り 駐車場
用途 店舗 築年月 1995年(平成 7年) 9月
現況 空き 引渡 令和8年1月中旬
最終確認日 2026年2月16日 次回確認日 2026年3月16日
その他1 2年契約 その他2 火災保険加入要
コメント ★五条坂東ビル101
New清水五条駅徒歩5分!五条通り面す1階♪地下倉庫使用付。
物販、事務所向き。飲食店不可
電気,上水道,水道その他,給湯,トイレ専用,エアコン,インターネット対応,オートロック


間取り図・詳細資料を請求する。




Copyright (c) Tenant-Kyoto All rights reserved.