テナント京都プロデユース
事業内容 物件検索 物件募集 家主様へ リフォーム事業 開店プロデュース お問い合わせ

    ■京都テナント・貸家物件検索■  <仲介>

[一覧へもどる]
物件No. 122093
物件種別 事業 物件種目 店舗一部
賃料 29.7万円 共益費(円)
所在地 京都市左京区浄土寺上馬場町 交通 京都市バス浄土寺駅歩1分
保証金(万円)   解約引
敷金(万円)   礼金(万円) 59.4万円
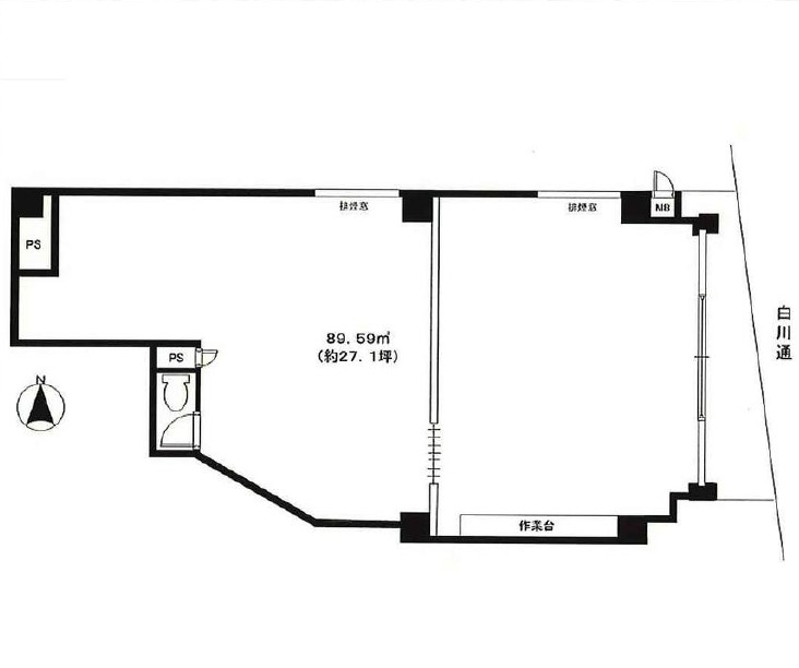
土地面積(平米)   建物/専有面積(平米) 89.59
構造 RC 階建/階 3/1
間取り 駐車場
用途 築年月 1991年(平成 3年) 3月
現況 入居中 引渡 令和 8年 4月 上旬
最終確認日 2026年4月15日 次回確認日 2026年5月13日
その他1 10年定期借家契約 その他2 火災保険・保証会社加入要
コメント ★浄土寺ビル1階
New白川通り面す1階!物販・医院・美容院に適す♪飲食店相談
●重飲食・深夜営業不可
●賃料の3分の2インボイス対応


間取り図・詳細資料を請求する。




Copyright (c) Tenant-Kyoto All rights reserved.