テナント京都プロデユース
事業内容 物件検索 物件募集 家主様へ リフォーム事業 開店プロデュース お問い合わせ

    ■京都テナント・貸家物件検索■  <仲介>

[一覧へもどる]
物件No. 122083
物件種別 事業 物件種目 店舗戸建
賃料 11万円 共益費(円)
所在地 京都市中京区壬生高樋町 交通 阪急電鉄京都線大宮駅歩6分
保証金(万円)   解約引 返還率有
敷金(万円) 20万円 礼金(万円) 11万円
土地面積(平米)   建物/専有面積(平米) 174.1
構造 木造 階建/階 2/
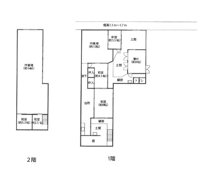
間取り 駐車場
用途 築年月 不詳
現況 空き 引渡 相談
最終確認日 2025年12月23日 次回確認日 2026年1月20日
その他1 10年定期借家契約/再契約料賃料の1ヵ月分 その他2 火災保険・保証会社加入要
コメント ★壬生高樋町元工場
New大宮駅徒歩6分!路地奥の大きな元染色工場。カフェ等に♪
●現状有姿にて賃貸。
●躯体各設備等、貸主による修繕義務免責。
●リフォーム要す。
●近隣にコインパーキング多数あり。

 

間取り図・詳細資料を請求する。




Copyright (c) Tenant-Kyoto All rights reserved.