テナント京都プロデユース
事業内容 物件検索 物件募集 家主様へ リフォーム事業 開店プロデュース お問い合わせ

    ■京都テナント・貸家物件検索■  <仲介>

[一覧へもどる]
物件No. 122064
物件種別 事業 物件種目 店舗一部
賃料 16.5万円 共益費(円)
所在地 京都市中京区蛸薬師通柳馬場東入油屋町 交通 阪急電鉄京都線京都河原町駅歩8分
保証金(万円) 45万円 解約引
敷金(万円)   礼金(万円)  
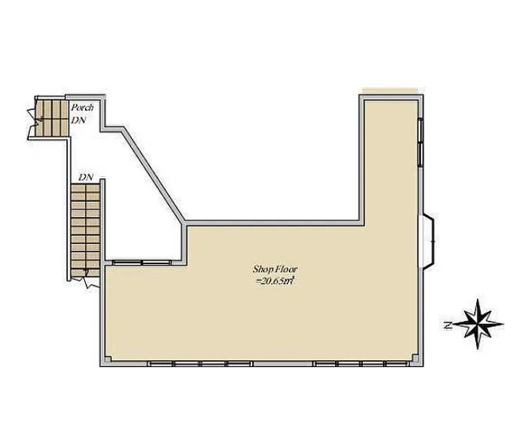
土地面積(平米)   建物/専有面積(平米) 20.65
構造 鉄骨造 階建/階 3/2
間取り 駐車場
用途 店舗 築年月 1979年(昭和54年)11月
現況 空き 引渡
最終確認日 2025年12月4日 次回確認日 2026年1月1日
その他1 10年定期借家契約 その他2 火災保険・保証会社加入要
コメント ★油屋町貸店舗
New河原町駅徒歩5分!富小路通り面す2階♪看板設置応相談。
●町内会費は入居者の実費払い


間取り図・詳細資料を請求する。




Copyright (c) Tenant-Kyoto All rights reserved.