テナント京都プロデユース
事業内容 物件検索 物件募集 家主様へ リフォーム事業 開店プロデュース お問い合わせ

    ■京都テナント・貸家物件検索■  <仲介>

[一覧へもどる]
物件No. 122035
物件種別 事業 物件種目 店舗戸建
賃料 60万円 共益費(円)
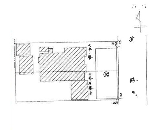
所在地 京都市上京区上立売通浄福寺西入上る真倉町 交通 京都市烏丸線今出川駅歩20分
保証金(万円)   解約引
敷金(万円) 60万円 礼金(万円) 60万円
土地面積(平米)   建物/専有面積(平米) 318.95
構造 鉄骨造 階建/階 2/
間取り 駐車場
用途 店舗 築年月 1963年(昭和38年) 9月
現況 空き 引渡 相談
最終確認日 2025年11月19日 次回確認日 2025年12月17日
その他1 5年定期借家契約 その他2 火災保険加入要
コメント ★真倉町貸店舗
New水屋のある本格的な茶室と灯篭付きの庭有り!民泊可♪蔵もあり!
●西陣の真ん中に位置し、堀川上立売バス停すぐの立地。
●家2軒分の敷地にトイレも6か所有り。
※改装は借主負担でお願いします。

 

間取り図・詳細資料を請求する。




Copyright (c) Tenant-Kyoto All rights reserved.