テナント京都プロデユース
事業内容 物件検索 物件募集 家主様へ リフォーム事業 開店プロデュース お問い合わせ

    ■京都テナント・貸家物件検索■  <仲介>

[一覧へもどる]
物件No. 122028
物件種別 事業 物件種目 店舗戸建
賃料 16.5万円 共益費(円)
所在地 京都市下京区来迎堂町 交通 阪急電鉄京都線大宮駅歩8分
保証金(万円) 45万円 解約引 返還率有
敷金(万円)   礼金(万円)  
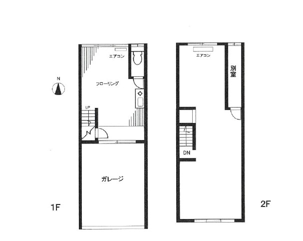
土地面積(平米)   建物/専有面積(平米) 88.37
構造 木造 階建/階 2/
間取り 駐車場
用途 店舗 築年月 不詳
現況 空き 引渡
最終確認日 2025年11月6日 次回確認日 2025年12月4日
その他1 3年定期借家契約 その他2 火災保険・保証会社加入要
コメント ★堀川松原一棟貸し
New大宮駅徒歩8分!松原通り面す♪軽飲食相談可。駐車1台可
●再契約可
●隣接ガレージ大型車駐車可

 

間取り図・詳細資料を請求する。




Copyright (c) Tenant-Kyoto All rights reserved.