テナント京都プロデユース
事業内容 物件検索 物件募集 家主様へ リフォーム事業 開店プロデュース お問い合わせ

    ■京都テナント・貸家物件検索■  <仲介>

[一覧へもどる]
物件No. 122027
物件種別 事業 物件種目 店舗戸建
賃料 60.5万円 共益費(円)
所在地 京都市下京区諏訪町通五条上る高砂町 交通 京都市烏丸線五条駅歩2分
保証金(万円) 165万円 解約引 返還率有
敷金(万円)   礼金(万円) 60.5万円
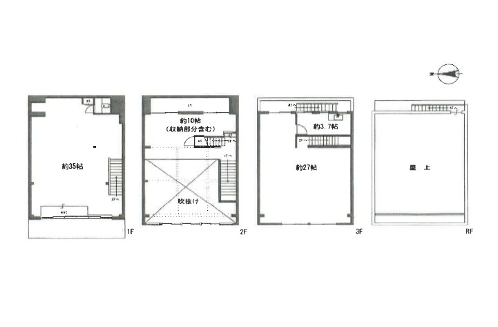
土地面積(平米)   建物/専有面積(平米) 130.46
構造 RC 階建/階 3/1
間取り 駐車場
用途 店舗 築年月 1966年(昭和41年) 8月
現況 空き 引渡 相談
最終確認日 2025年10月31日 次回確認日 2025年11月28日
その他1 10年定期借家契約/再契約料新賃料1カ月分 その他2 火災保険・保証会社加入要
コメント ★高砂町ビル
New五条駅徒歩2分!飲食店可テナントビル♪業種多岐に相談可。
●改修工事予定【屋上防水工事、外壁塗装、1F土間施工、2F副抜作成、3Fクロス張替】

 

間取り図・詳細資料を請求する。




Copyright (c) Tenant-Kyoto All rights reserved.