テナント京都プロデユース
事業内容 物件検索 物件募集 家主様へ リフォーム事業 開店プロデュース お問い合わせ

    ■京都テナント・貸家物件検索■  <仲介>

[一覧へもどる]
物件No. 122020
物件種別 事業 物件種目 店舗一部
賃料 12万円 共益費(円)
所在地 京都市中京区楠町 交通 京都市烏丸線丸太町駅歩3分
保証金(万円) 120万円 解約引
敷金(万円)   礼金(万円)  
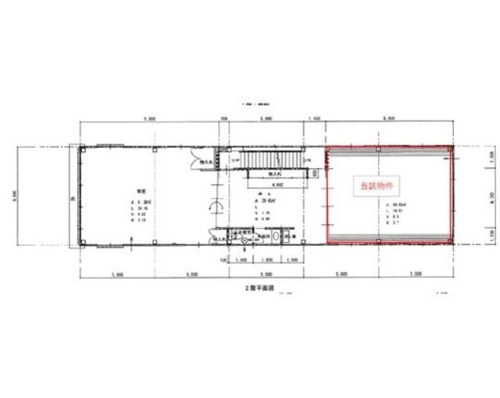
土地面積(平米)   建物/専有面積(平米) 56
構造 鉄骨造 階建/階 3/2
間取り 駐車場
用途 店舗 築年月 2007年(平成19年) 2月
現況 入居中 引渡 相談
最終確認日 2025年10月27日 次回確認日 2025年11月24日
その他1 その他2
コメント ★京遊学舎
New丸太町駅徒歩3分!間之町通り面す2階♪前テナント教室。
●京都御所近く
●利便性のあり。
●こども未来館そば

 

間取り図・詳細資料を請求する。




Copyright (c) Tenant-Kyoto All rights reserved.