テナント京都プロデユース
事業内容 物件検索 物件募集 家主様へ リフォーム事業 開店プロデュース お問い合わせ

    ■京都テナント・貸家物件検索■  <仲介>

[一覧へもどる]
物件No. 122011
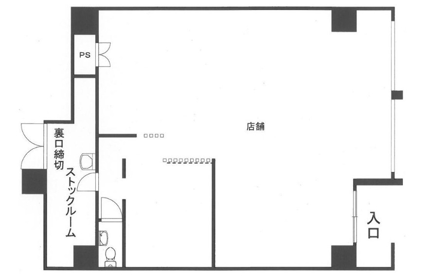
物件種別 事業 物件種目 店舗一部
賃料 47万円 共益費(円) 5,500
所在地 京都市東山区高畑町 交通 京都市東西線東山駅歩4分
保証金(万円)   解約引 返還率有
敷金(万円) 47万円 礼金(万円) 47万円
土地面積(平米)   建物/専有面積(平米) 108
構造 RC 階建/階 7/1
間取り 駐車場
用途 築年月 2008年(平成20年) 1月
現況 入居中 引渡 令和 7年12月 中旬
最終確認日 2025年10月21日 次回確認日 2025年11月18日
その他1 3年契約 その他2 火災保険・保証会社加入要
コメント ★サンコーポ東山1階
New東山通り面す1階!知恩院近く♪間口9.6m!業種相談。
※飲食店不可
●貸主はインボイス登録済
●オーナー面談有
●水道料は業種によりますが事務所なら定額5500円(税込)
●ペット不可 トイレ・照明・給湯・エアコンは残置物につき、故障及び交換、修理は借主負担となります


間取り図・詳細資料を請求する。




Copyright (c) Tenant-Kyoto All rights reserved.