テナント京都プロデユース
事業内容 物件検索 物件募集 家主様へ リフォーム事業 開店プロデュース お問い合わせ

    ■京都テナント・貸家物件検索■  <仲介>

[一覧へもどる]
物件No. 122010
物件種別 事業 物件種目 店舗一部
賃料 22万円 共益費(円) 22,000
所在地 京都市北区上賀茂岩ケ垣内町 交通 京都市烏丸線北山駅歩1分
保証金(万円) 66万円 解約引 返還率有
敷金(万円)   礼金(万円)  
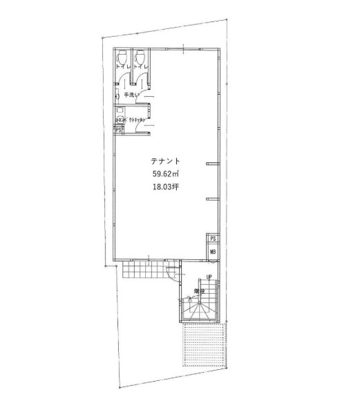
土地面積(平米)   建物/専有面積(平米) 59.62
構造 木造 階建/階 3/1
間取り 駐車場
用途 築年月 2025年(令和 7年)12月
現況 建築中 引渡 令和 8年 1月 下旬
最終確認日 2025年10月20日 次回確認日 2025年11月17日
その他1 3年契約 その他2 火災保険・保証会社加入要
コメント ★植物園前貸店舗
New北山通り面す!北山駅すぐ♪メディカル・クリニック歓迎
●来客用駐輪スペース有り ・コンパクトキッチン、手洗い洗面
●12月末新築完成予定、2026年1月下旬〜入居

 

間取り図・詳細資料を請求する。




Copyright (c) Tenant-Kyoto All rights reserved.