テナント京都プロデユース
事業内容 物件検索 物件募集 家主様へ リフォーム事業 開店プロデュース お問い合わせ

    ■京都テナント・貸家物件検索■  <仲介>

[一覧へもどる]
物件No. 122005
物件種別 事業 物件種目 店舗戸建
賃料 33万円 共益費(円)
所在地 京都市左京区浄土寺南田町 交通 京阪鴨東線出町柳駅歩30分
保証金(万円)   解約引
敷金(万円) 33万円 礼金(万円) 66万円
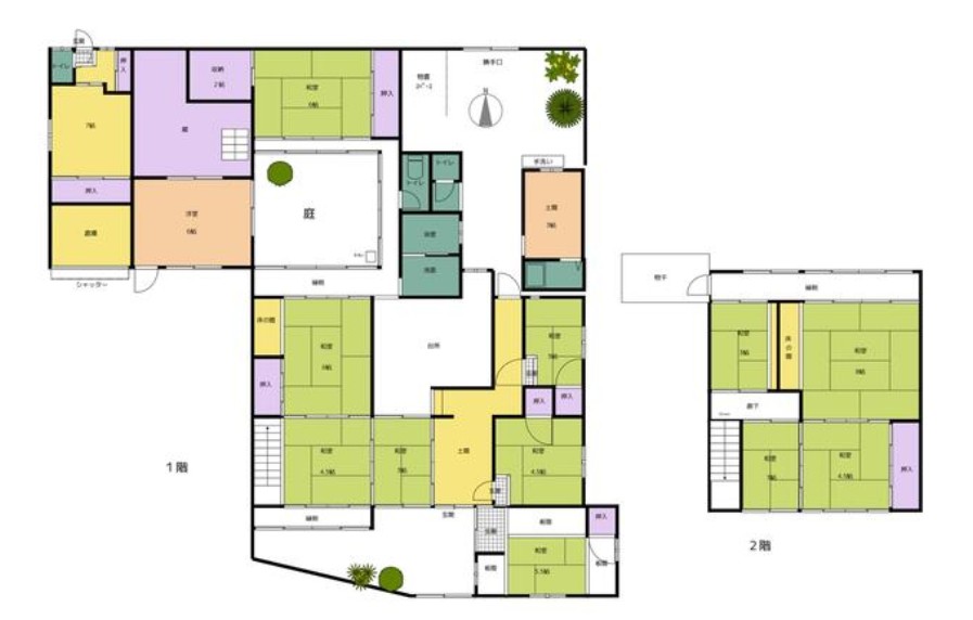
土地面積(平米)   建物/専有面積(平米) 235.03
構造 木造 階建/階 2/
間取り 駐車場
用途 店舗 築年月 1929年(昭和 4年) 7月
現況 空き 引渡
最終確認日 2025年10月31日 次回確認日 2025年11月28日
その他1 3年契約 その他2 火災保険・保証会社加入要
コメント ★浄土寺南田町貸店舗
New哲学の道近くの店舗付住宅♪庭有り。業種相談。要改装。


間取り図・詳細資料を請求する。




Copyright (c) Tenant-Kyoto All rights reserved.