テナント京都プロデユース
事業内容 物件検索 物件募集 家主様へ リフォーム事業 開店プロデュース お問い合わせ

    ■京都テナント・貸家物件検索■  <仲介>

[一覧へもどる]
物件No. 121992
物件種別 事業 物件種目 店舗戸建
賃料 44万円 共益費(円)
所在地 京都市北区大宮釈迦谷 交通 京都市バス鷹峯源光庵前駅歩7分
保証金(万円)   解約引
敷金(万円) 240万円 礼金(万円)  
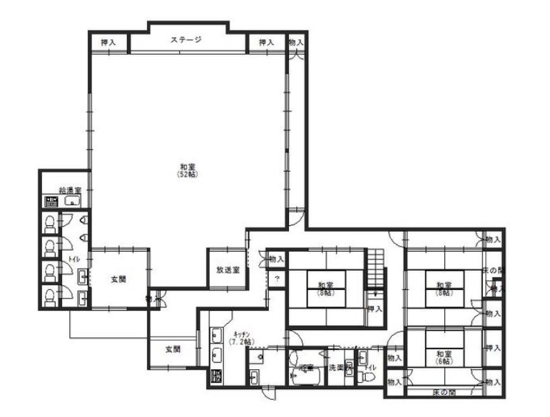
土地面積(平米)   建物/専有面積(平米) 152.66
構造 木造 階建/階 2/
間取り 駐車場
用途 築年月 1970年(昭和45年) 2月
現況 引渡
最終確認日 2025年10月2日 次回確認日 2025年10月30日
その他1 10年定期借家契約 その他2 火災保険・保証会社加入要
コメント ★大宮釈迦谷貸店舗
New鷹峯源光庵前バス停徒歩7分。飲食店可!駐車場2台分有
●冷蔵庫,給湯,トイレ専用,トイレ2箇所,バス・トイレ別,冷房,暖房,エアコン。

 

間取り図・詳細資料を請求する。




Copyright (c) Tenant-Kyoto All rights reserved.