テナント京都プロデユース
事業内容 物件検索 物件募集 家主様へ リフォーム事業 開店プロデュース お問い合わせ

    ■京都テナント・貸家物件検索■  <仲介>

[一覧へもどる]
物件No. 121287
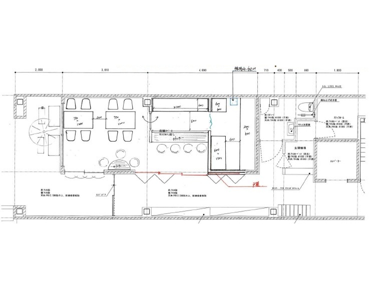
物件種別 事業 物件種目 店舗一部
賃料 16.5万円 共益費(円)
所在地 京都市下京区上夷町 交通 JR京都駅歩11分
保証金(万円) 45万円 解約引
敷金(万円)   礼金(万円)  
土地面積(平米)   建物/専有面積(平米) 36.05
構造 鉄骨造 階建/階 3/1
間取り 駐車場
用途 築年月 2018年(平成30年) 6月
現況 入居中 引渡 令和 8年 4月 下旬
最終確認日 2026年3月26日 次回確認日 2026年4月23日
その他1 3年定期借家契約/ その他2
コメント ★京都駅周辺ホテル1階
New京都駅・梅小路公園近くのホテル1階♪カフェに最適です!
●契約期間延長相談可

 

間取り図・詳細資料を請求する。




Copyright (c) Tenant-Kyoto All rights reserved.